Casa indipendente in vendita

Carate Brianza, Viale brianza
€ 480.000
5 locali 5 locali
533 Mq 533 Mq
2 bagni 2 bagni

Casa indipendente in vendita

Carate Brianza, Viale brianza

Descrizione annuncio

Zona Viale Brianza – Intera palazzina con area privata
In una posizione strategica e di grande visibilità, su strada ad alto passaggio e a pochi passi da servizi, negozi, scuole e mezzi di trasporto, proponiamo in vendita un’intera palazzina a destinazione mista, artigianale e residenziale, dotata di ampia area privata.
L’edificio, originario della metà degli anni ’60 e ristrutturato nel 1983 e nei primi anni 2000, si presenta in ottimo stato e offre spazi versatili adatti a diverse esigenze.

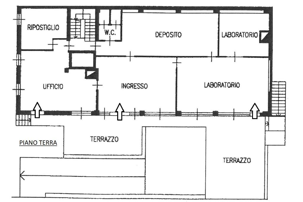
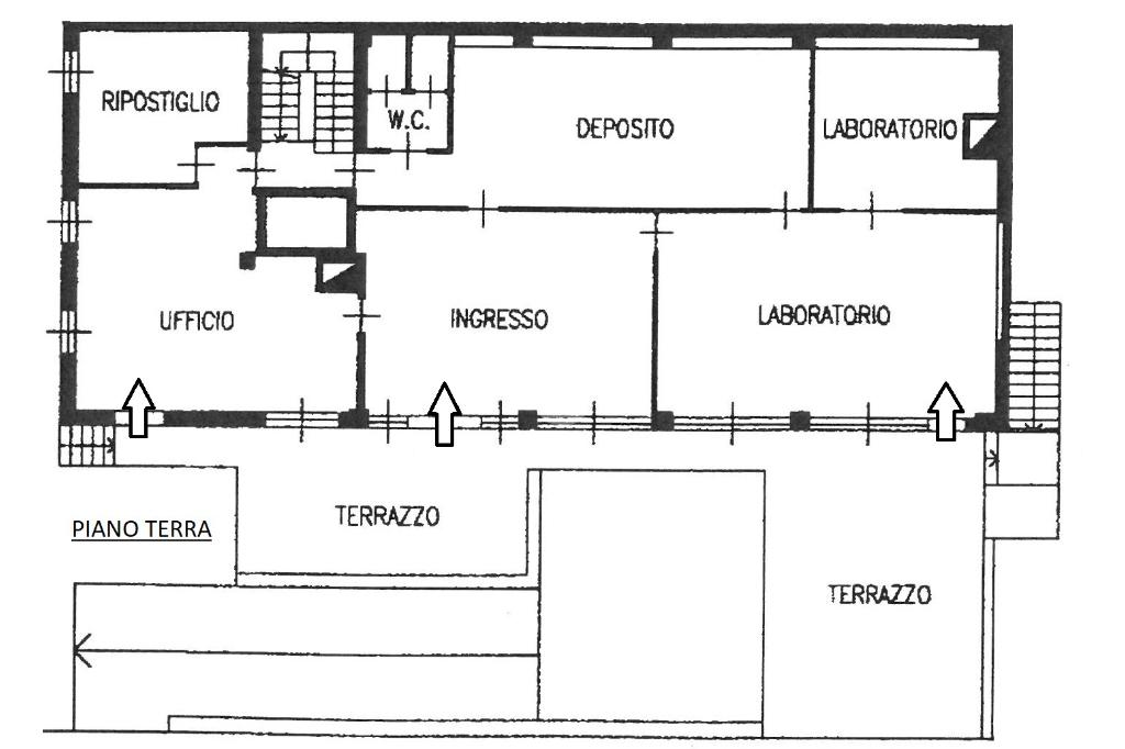
Piano rialzato (250 mq ca.): laboratorio artigianale con uffici, servizi e due ampi terrazzi (84 mq complessivi).
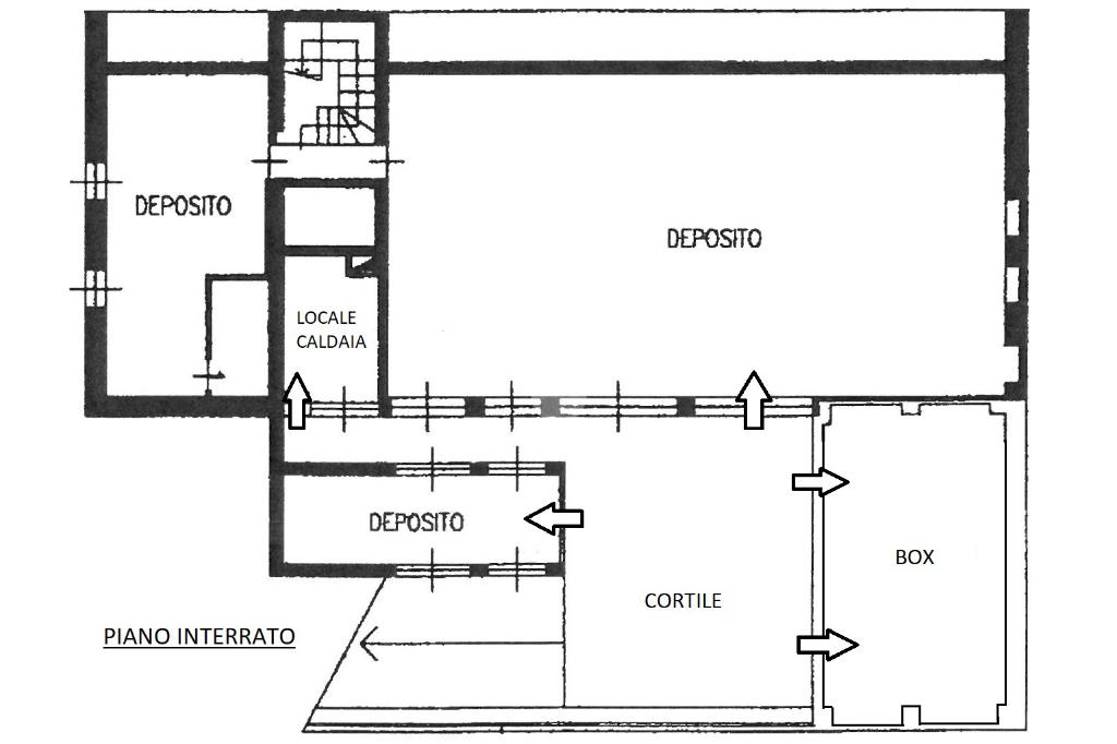
Piano seminterrato (220 mq ca.): accessibile sia dal cortile che dal laboratorio, comprende un magazzino suddiviso in tre ambienti, locale caldaia, deposito aggiuntivo di 20 mq e box triplo di 48 mq.
Primo piano (80 mq ca.): appartamento indipendente composto da tre locali, bagno ristrutturato nel 2015 e balconata con accesso diretto al lastrico solare di circa 170 mq, che sovrasta il laboratorio.

La palazzina è collegata internamente da una scala e offre la possibilità di ripristinare un montacarichi per 4/6 persone.

All’esterno dispone di circa 300 mq di area privata, tra cortile, parcheggio e giardino.

Dotazioni e finiture:
Pavimenti in ceramica in tutti gli ambienti.
Infissi in alluminio con doppi vetri.
Riscaldamento e climatizzazione separati negli spazi artigianali, con pompe di calore; impianto tradizionale con caldaia autonoma per l’abitazione.
Impianto elettrico del laboratorio a norma, rifatto nel 2021 (220/380V – 16Kw).
Videosorveglianza con 12 telecamere e antifurto volumetrico a zone.
Cancello elettrico, illuminazione centralizzata del cortile e impianto di irrigazione automatica per il giardino.

Un immobile completo, ideale per chi cerca una soluzione che unisca spazi lavorativi e abitativi nello stesso contesto, con la comodità di una posizione servita e facilmente raggiungibile.

La nostra agenzia immobiliare, affiliata Tecnocasa, presente sul territorio di Carate Brianza e frazioni dal 1987, si occupa dell'intermediazione per la vendita e locazione di immobili residenziali e commerciali offrendo un servizio a 360°, accompagnando i clienti in tutte le fasi della compravendita fino e anche oltre al rogito.

Mostra tutto

Nelle vicinanze

Trasporto pubblico Trasporto pubblico
Triuggio-Ponte Albiate
Triuggio-Ponte Albiate
2,6 Km
Viale Brianza - Via De Gasperi (Carate Brianza)
Viale Brianza - Via De Gasperi (Carate Brianza)
280 m
Viale Bianchi (Ospedale) (Carate Brianza)
Viale Bianchi (Ospedale) (Carate Brianza)
370 m
Carate-Calò
Carate-Calò
1,1 Km
Villa Raverio
Villa Raverio
2,6 Km
Ricariche auto elettriche Ricariche auto elettriche
Piazza Grandi
2,0 Km
MediaWorld Giussano
2,4 Km
MediaWorld Giussano Bis
2,4 Km
Krealpool SRL
2,7 Km
In's Mercato
2,8 Km
Scuole Scuole
Ist. Paritario Vescovi Valtorta e Colombo
150 m
Istituto di Istruzione Superiore Leonardo da Vinci
310 m
Fondazione In-Presa Emilia Vergani
560 m
Scuole
680 m
Scuola Elementare e Liceo Don Carlo Gnocchi
860 m
Farmacia Farmacia
Farmacia Gatti
480 m
Farmacia
610 m
Farmacia Agliate
1,5 Km
Farmacia Negri
2,3 Km
Lloyds Farmacia San Salvatore
2,6 Km
Ospedali Ospedali
Bianalisi s.r.l. Analisi Mediche
400 m
Ospedali
410 m
Ospedale Vittorio Emanuele III
600 m
policlinico di Monza
1,4 Km
Dedalo Psicologia
2,1 Km
Supermercati Supermercati
Conad
570 m
Supermercati
1,3 Km
Iperal
1,3 Km
Coop
2,0 Km
EuroSpin
2,3 Km
Negozi Negozi
Scama
150 m
Eurospin
520 m
Longoni
1,0 Km
Marianna confezioni
1,4 Km
Abbigliamento Fumagalli
1,9 Km
Bar Bar
Brianza Caffè
110 m
Blue bar
430 m
Expo Cafè
510 m
Mystic Burger
610 m
Bar
780 m
Ristoranti Ristoranti
La Piana
270 m
Pizzeria Nuova Idea
330 m
La Dama di Bacco
630 m
Il Ritrovo
770 m
Al Burigiott
810 m
Mostra tutto

Caratteristiche

Rif.:
61113434
Piano:
Su più livelli di 2
Totale piani:
2
Box:
2
Posti auto:
5
Balconi:
1
Mostra tutto
Prezzo Prezzo
€ 480.000
Rata mutuo Rata mutuo
€ 2.228 / mese
Spese annue Spese annue
€ 0
Proponi il tuo prezzoProponi il tuo prezzo

Classe Energetica

F
F
F
F
F
F
F
F
F
EP globale non rinnovabile:
214.11 kW h/m² anno
EP globale rinnovabile:
0.00 kW h/m² anno
EP invernale del fabbricato:
EP estiva del fabbricato:
Anno di costruzione:
1965
Riscaldamento:
Autonomo
Tipo impianto:
Ad aria
Tipo alimentazione:
Metano

Ti interessa visionare l'immobile?

Fissa un appuntamento  Fissa un appuntamento

Richiedi informazioni

Clicca su Leggi per aprire l'informativa
* Questi campi sono obbligatori

Calcola il tuo mutuo

Semplice e senza impegno
Anticipo

( % )
Mutuo

( % )

pochi semplici passi

inserisci i tuoi dati
Questionario completato
Grazie per aver richiesto un appuntamento senza impegno con un nostro Consulente del Credito e Assicurativo.

Hai inserito correttamente tutti i dati necessari e a breve riceverai una e-mail con un link da convalidare per inviare i tuoi dati.
Affiliato
Studio Carate Nord Srl
P.zza Cesare Battisti , 8 20841 Carate Brianza (MB)

Il nostro staff


  • Maurizio Cappi
    Affiliato

  • Alice Proserpio
    Collaboratrice

  • Daniele Calzone
    Collaboratore

  • Sara Sabatino
    Coordinatrice

  • Davide Zanin
    Collaboratore
P.zza Cesare Battisti , 8 20841 Carate Brianza (MB)
Zona: Carate Brianza
Mostra su mappa
Orari: dal lunedì al venerdì dalle 9.00 alle 13.00 e dalle 15.00 alle 20.00; sabato dalle ore 9.00 alle 12.30 e dalle 14.30 alle 17.00
Affiliato
Studio Carate Nord Srl
P.zza Cesare Battisti , 8 20841 Carate Brianza (MB)

2026 Tecnocasa Franchising S.p.A. - P. IVA 08365160152 - Via Monte Bianco 60/A 20089 Rozzano (MI). Ogni agenzia ha un proprio titolare ed è autonoma. Privacy policy | Policy utilizzo | Cookie policy