Ufficio in affitto

Carate Brianza, Piazza Risorgimento
€ 2.900 / mese
5 locali 5 locali
390 Mq 390 Mq
4 bagni 4 bagni

Ufficio in affitto

Carate Brianza, Piazza Risorgimento

Descrizione annuncio

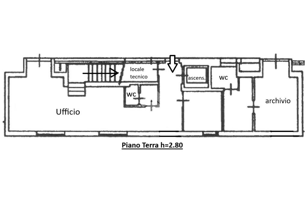
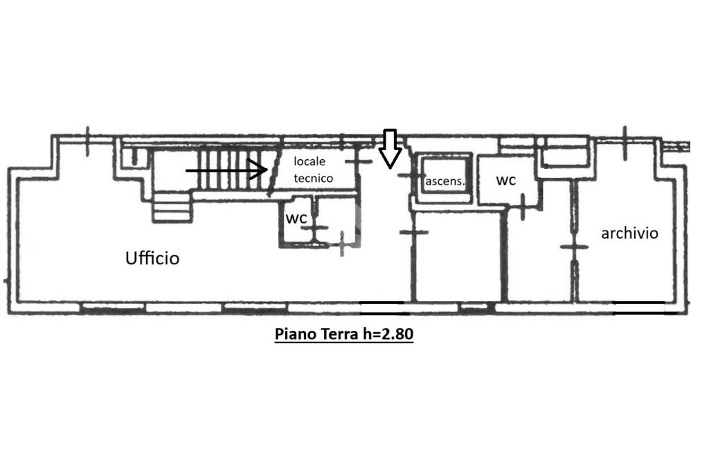
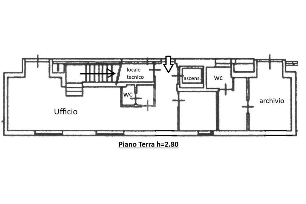
Carate Zona centrale, adiacenze Carabinieri, proponiamo intera palazzina uso uffici disposta su 4 livelli di circa 105 mq. cadauno, serviti da ascensore privato interno.

Il piano terra, con ingresso indipendente direttamente dalla strada, è composto da una zona reception, un locale attesa/archivio e doppi servizi. Il primo e secondo piano sono composti da ampi locali open space, divisibili con pareti mobili, menre il terzo e ultimo piano è adibito attualmente a locale archivio con doppi servizi e due vani tecnici nel sottotetto.

L'immobile si trova in ottime condizioni interne, con pavimentazione in ceramica in tutti i locali, infissi in alluminio con doppi vetri, impianto elettrico a norma e certificato, tutti i piani sono cablati, impianto di riscaldamento autonomo con pompa di calore.

Ampia area a parcheggio privata adiacente all'immobile.

La nostra agenzia immobiliare, affiliata Tecnocasa, presente sul territorio di Carate Brianza e frazioni dal 1987, si occupa dell'intermediazione per la vendita e locazione di immobili residenziali e commerciali offrendo un servizio a 360°, accompagnando i clienti in tutte le fasi della compravendita fino e anche oltre al rogito.

Mostra tutto

Nelle vicinanze

Trasporto pubblico Trasporto pubblico
Via Milano - Via Firenze (Carate Brianza)
Via Milano - Via Firenze (Carate Brianza)
180 m
Viale Brianza - Via De Gasperi (Carate Brianza)
Viale Brianza - Via De Gasperi (Carate Brianza)
320 m
Carate-Calò
Carate-Calò
1,7 Km
Ricariche auto elettriche Ricariche auto elettriche
MediaWorld Giussano
1,9 Km
MediaWorld Giussano Bis
1,9 Km
Krealpool SRL
2,1 Km
In's Mercato
2,4 Km
Piazza Grandi
2,4 Km
Scuole Scuole
Fondazione In-Presa Emilia Vergani
80 m
Istituto di Istruzione Superiore Leonardo da Vinci
330 m
Scuole
460 m
Scuola Elementare e Liceo Don Carlo Gnocchi
530 m
Ist. Paritario Vescovi Valtorta e Colombo
690 m
Farmacia Farmacia
Farmacia
200 m
Farmacia Gatti
580 m
Farmacia Agliate
1,5 Km
Farmacia Taborelli
2,1 Km
Farmacia Comunale Birone
2,4 Km
Ospedali Ospedali
Bianalisi s.r.l. Analisi Mediche
340 m
Ospedali
690 m
policlinico di Monza
770 m
Ospedale Vittorio Emanuele III
1,2 Km
Dedalo Psicologia
2,4 Km
Supermercati Supermercati
Conad
180 m
Iperal
890 m
Supermercati
900 m
EuroSpin
1,7 Km
Esselunga di Paina
1,8 Km
Negozi Negozi
Eurospin
100 m
Scama
480 m
Marianna confezioni
1,3 Km
Longoni
1,3 Km
OVS
1,7 Km
Bar Bar
Mystic Burger
190 m
Blue bar
310 m
Bar
450 m
Brianza Caffè
510 m
Bar Piazzetta del campo
790 m
Ristoranti Ristoranti
Flo Pizzeria
300 m
Pizzeria Nuova Idea
650 m
La Piana
680 m
Il Ritrovo
740 m
Ristorante del centro
810 m
Mostra tutto

Caratteristiche

Rif.:
61186361
Piano:
Su più livelli di 4 con ascensore
Totale piani:
4
Posti auto:
4
Condizionamento:
Autonomo
Ascensore:
Mostra tutto
Prezzo Prezzo
€ 2.900 / mese
Spese annue Spese annue
€ 0

Classe Energetica

E
E
E
E
E
E
E
E
E
EP globale non rinnovabile:
231.57 kW h/m² anno
EP globale rinnovabile:
0.00 kW h/m² anno
EP invernale del fabbricato:
EP estiva del fabbricato:
Anno di costruzione:
2005
Riscaldamento:
Autonomo
Tipo impianto:
Ad aria
Tipo alimentazione:
Metano

Ti interessa visionare l'immobile?

Fissa un appuntamento  Fissa un appuntamento

Richiedi informazioni

Clicca su Leggi per aprire l'informativa
* Questi campi sono obbligatori
Affiliato
Studio Carate Nord Srl
P.zza Cesare Battisti , 8 20841 Carate Brianza (MB)

Il nostro staff


  • Maurizio Cappi
    Affiliato

  • Alice Proserpio
    Collaboratrice

  • Daniele Calzone
    Collaboratore

  • Sara Sabatino
    Coordinatrice

  • Davide Zanin
    Collaboratore
P.zza Cesare Battisti , 8 20841 Carate Brianza (MB)
Zona: Carate Brianza
Mostra su mappa
Orari: dal lunedì al venerdì dalle 9.00 alle 13.00 e dalle 15.00 alle 20.00; sabato dalle ore 9.00 alle 12.30 e dalle 14.30 alle 17.00
Affiliato
Studio Carate Nord Srl
P.zza Cesare Battisti , 8 20841 Carate Brianza (MB)

2026 Tecnocasa Franchising S.p.A. - P. IVA 08365160152 - Via Monte Bianco 60/A 20089 Rozzano (MI). Ogni agenzia ha un proprio titolare ed è autonoma. Privacy policy | Policy utilizzo | Cookie policy